Qubis – Инновационный формат коммерческой недвижимости в концепции Light Industrial

Постройте себе востребованную коммерческую недвижимость 5 в 1 со ставкой аренды от 1600 рублей за метр!

QUBIS – готовый проект многофункционального здания для вашего участка.
Склад, офис, шоурум, производство или стрит-ритейл в одной локации!
Вы получите:
готовую проектную документацию
возможность сопровождения на всех этапах
Кому подходит QUBIS?
  • Владельцам земли
  • Инвесторам в доходную недвижимость
  • Инвесторам, приобретающим для собственного бизнеса
Подберем земельный участок
Оптимизируем проект под конкретный участок
Проведем все согласования, получим разрешения
Организуем строительные работы
Поможем со сдачей модулей в аренду

Что входит в набор готовой документации?

Проект одноэтажного здания формата Light Industrial площадью 1500 м². С антресолями площадью 40% от площади по полу первого этажа.
Документация выполнена в Revit с детализацией LOD300. Конструктивные разделы – в Tekla, совместимой с Revit.
Рабочая документация
  • КЖ «Конструкции железобетонные»
  • КМ «Конструкции металлические»
  • АР «Архитектурные решения»
  • ЭО «Электроснабжение»
  • ВК «Водоснабжение и канализация внутренние»
  • ОВиК «Отопление, вентиляция и кондиционирование»
  • ИТП «Индивидуальный тепловой пункт»
  • АД «Автоматизация и диспетчеризация»
  • ПС, СОУЭ «Пожарная сигнализация» «Система оповещения и управления эвакуацией»
  • СКС, СКУД «Структурированная комплексная система, система контроля и управления доступом, видеонаблюдение»
  • Спецификации материалов и оборудования
Проектная документация
  • «Объемно-планировочные и архитектурные решения»
  • «Конструктивные решения»
  • «Сведения об инженерном оборудовании, о сетях инженерно-технического обеспечения»
  • Система электроснабжения
  • Система водоснабжения
  • Система водоотведения
  • Отопление
  • Вентиляция и кондиционирование воздуха
  • Сети связи

Qubis идеально подходит под нужды малого и среднего бизнеса

Все функции в одном месте
Image description
Универсальное здание 24 x 60 метров. Состоит из 5 модулей 12 x 14 метров
Универсальное здание 24 x 60 метров. Состоит из 5 модулей 12 x 14 метров
Image description
Высокие для индустриального здания ТЭПы за счет двухэтажности
Высокие для индустриального здания ТЭПы за счет двухэтажности
Image description
У каждого модуля свой вход с улицы и грузовые ворота на отметке 0 размером 3,5 х 4,0 метра
У каждого модуля свой вход с улицы и грузовые ворота на отметке 0 размером 3,5 х 4,0 метра
Image description
Благоустроенная среда – кафе, беседки, зоны отдыха
Благоустроенная среда – кафе, беседки, зоны отдыха
Image description
Синергия и сотрудничество между арендаторами
Синергия и сотрудничество между арендаторами
Image description
Гибкость пространств, модульность, вариативность
Гибкость пространств, модульность, вариативность

Ваши будущие арендаторы

Image description
Производство
Производство
  • Электронных изделий
  • Мебельной продукции
  • Текстильных изделий
  • Пищевых продуктов
  • Металлических изделий
  • Пластмассовых изделий
  • Лекарственных средств
Image description
Склад
Склад
  • Производственный
  • Розничный
  • Распределительный
  • Центр выдачи заказов
Image description
Офис
Офис
  • IT
  • Дизайн-студия
  • Коворкинг
  • Строительные компании
  • Агентства
  • Юридические услуги
Image description
Шоурум
Шоурум
  • Эксклюзивный магазин
  • Выставочный центр

Каким бы ни был ваш участок, – мы найдем оптимальное QUBIS-решение для вас!

Примеры участков разной формы и площади
Image description
Пример размещения зданий на квадратном участке
ТЭП:
  • Общая площадь участка: 12 340 м²
  • Общая площадь строений: 4 320 м²
  • Общая площадь озеленения: 15%
  • Количество паркомест: 112
3 блока 60х24 2-х этажных:
  • Общая площадь помещений под аренду: 9 528 м²
  • Общая площадь помещений МОП: 768 м²
  • Общая площадь помещений: 10 350 м²
  • Коэффициент 9 528/10 350 = 0,93
Image description
Пример размещения зданий на прямоугольном участке
ТЭП:
  • Общая площадь участка: 12 200 м²
  • Общая площадь строений: 4 320 м²
  • Общая площадь озеленения: 15%
  • Количество паркомест: 107
3 блока 60х24 2-х этажных:
  • Общая площадь помещений под аренду: 9 528 м²
  • Общая площадь помещений МОП: 768 м²
  • Общая площадь помещений: 10 350 м²
  • Коэффициент 9 528/10 350 = 0,93
Image description
Пример размещения зданий на участке неправильной формы
ТЭП:
  • Общая площадь участка: 13 540 м²
  • Общая площадь строений: 4 320 м²
  • Общая площадь озеленения: 15%
  • Количество паркомест: 107
3 блока 60х24 2-х этажных:
  • Общая площадь помещений под аренду: 9 528 м²
  • Общая площадь помещений МОП: 768 м²
  • Общая площадь помещений: 10 350 м²
  • Коэффициент 9 528/10 350 = 0,93

Ваш QUBIS-проект на примере

Генплан
Параметры универсального 60х24 2-х этажного блока:
• Общая площадь помещений под аренду: 3 194 м²
• Общая площадь помещений МОП: 256 м²
• Общая площадь помещений: 3 450 м²
• Коэффициент 3 194/3 450 = 0,93
Image description
Генплан
Аксонометрия
Объемно-планировочная структура зданий. Отображение комплекса зданий, видов благоустройства территории.
Image description
Аксонометрия
Визуализация здания снаружи
Фасад зданий может быть выполнен из различных материалов в соотвествии с выбранным проектом.
Image description
Визуализация здания снаружи
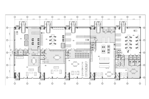
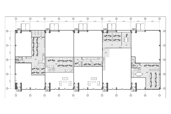
Планировка первого этажа
Пример планировки 1-го этажа
Image description
Планировка первого этажа
Планировка второго этажа
Пример планировки 2-го этажа
Image description
Планировка второго этажа
Визуализация внутри здания
Модульность, заложенная в основе проекта, дает большую вариативность в организации внутреннего пространства зданий.
Image description
Визуализация внутри здания

Реализованные проекты

В формате Light Industrial
«LEFT&RIGHT»
Санкт-Петербург, Парашютная ул., 43
«WorkShop»
Санкт-Петербург, Парашютная ул., 51
«Business Hub»
Санкт-Петербург, Ново-Никитинская ул., 18

Новые проекты

В формате Light Industrial
«Industrial Hub»

О компании «Первый Базис»

Компания «Первый Базис» начала свою деятельность в 1999 году. В настоящее время организация работает в нескольких направлениях: строительство для будущей аренды и продажи; строительство под цели заказчика; выполнение функций службы заказчика, генподрядчика, управляющей компании.

Девелопер «Первый Базис» первым в России реализовал проекты городской Light Industrial (первый сдан в эксплуатацию в 2018 году).

В 2023 году компания стала победителем премии «PROESTATE&TOBY Awards 2023» в номинации «Многофункциональный комплекс».
25 лет
на рынке недвижимости СПб
>35 проектов
реализовано
3 готовых проекта
в формате Light Industrial

Узнайте, как заработать на инвестициях в самый актуальный формат коммерческой недвижимости!

В сегменте Light Industrial
Проект группы компаний «Первый Базис». Обращаем ваше внимание на то, что данный интернет-сайт носит исключительно информационный характер и не является публичной офертой. Политика обработки персональных данных.